

Last minute Salento agosto - settembre 2012
l'estate è quasi finita e non hai ancora prenotato la tua casa vacanze? Approfitta delle ultime offerte proposte da <...(Leggi)
Last minute Salento luglio 2012
è arrivata l'estate e non hai ancora prenotato la tua casa vacanze? Ecco le offerte proposte da Costa Salento per tra...(Leggi)
Vacanza nel Salento: offerta imperdibile giugno 2012
I last minute proposti da Costa Salento
Voglia di Vacanza? Voglia di sole, mare e vento? Il ...(Leggi)
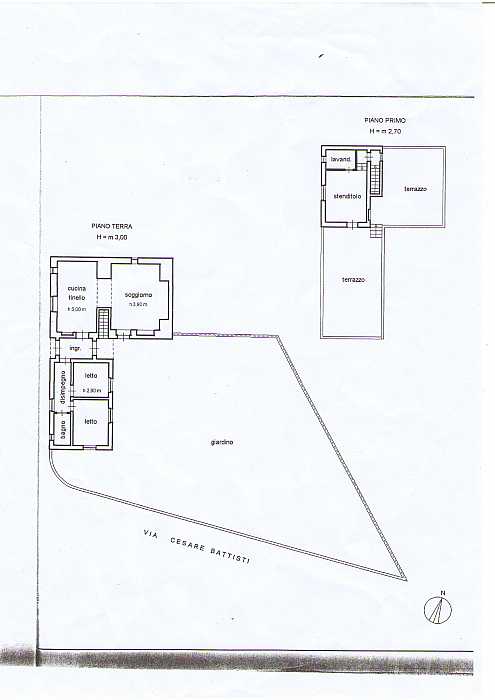
Villetta distribuita su due livelli composta da:PP soggiorno pranzo con caminetto, cucina, disimpegno, 2 camere da letto con bagno. Il PP composto da camera da letto con bagno e terrazzo a livello.
|
Fotografie |
Adagiata su un manto di verde a tratti abbellita da alberi di albicocco si erge una piccola villa sviluppata su due livelli. L'antico nucleo centrale, probabilmente una masseriola con alte volte a vela e botte, si è arricchito di altre 3 stanze e 2 bagni. Il tutto costruito in pietra di tufo nel rispetto della struttura originaria. La superficie coperta è di mq. 176 comprensivi del terrazzo a livello, dal quale si scorge una delle tre Chiese di Diso.
Il piano terra della villa si divide in: soggiorno pranzo con caminetto, cucina, disimpegno, 2 camere da letto con bagno. Il piano superiore, è composto da camera da letto con bagno e terrazzo a livello.
Si accede dal bellissimo giardino: un frutteto di mq. 300 in parte edificabile, con veranda, antico pozzo e posto auto . L'immobile è dotato di aria condizionata, riscaldamento, elettrodomestici e alcuni elementi di arredo. Ed è fornito, inoltre, di fognatura, acquedotto e metano.
|
Richiesta informazioniAnnuncio: La Palummella - Rif.:81 |
Posizione su Google Maps |
Invia per Email questo Annuncio ad un Amico |
Versione Stampabile di Questa Pagina |
Visualizza una mappa di questa'area. |
|
Questo annuncio è stato visto 1997 volte. |
REGOLAMENTO LOCAZIONI
PRENOTAZIONE
La richiesta di prenotazione può essere fatta tramite una semplice e-mail, per telefono o riempiendo l'apposito modulo on-line. Potete scriverci un'e-mail con i dati della richiesta, inserendo un recapito telefonico di rete fissa per essere ricontattati da noi all'orario che indicherete come preferito.
Se accetterete la nostra proposta vi sarà inviato un modulo di prenotazione che dovrete rinviarci debitamente compilato e firmato per accettazione.
Vi preghiamo di indicare l'orario del vostro arrivo.
ACCONTO, SALDO E ALTRE SPESE
E' richiesto un acconto pari al 30% della cifra totale, da pagare con bonifico bancario o vaglia postale. La prenotazione sarà accettata solo se accompagnata dagli estremi dell'avvenuto pagamento del suddetto acconto.
Il resto della cifra sarà pagato in contanti direttamente all'agenzia al momento del vostro arrivo, in seguito alla presa visione dell'appartamento prenotato.
Viene richiesto a parte:
- un importo di 50,00€ per le spese di pulizia, salvo diversamente pattuito;
- una cauzione in relazione al tipo d'immobile dai 100,00 ai 300,00 € che sarà restituita a fine soggiorno, con le dovute detrazioni in caso di danni all’alloggio.
Il cliente è in ogni caso responsabile per eventuali danni causati alla casa superiori all’importo del deposito cauzionale;
- un supplemento di 52 € qualora l’ospite porti con sé un animale. Sono ammessi animali, solo se di piccola taglia, a patto che non salgano su letti, sedie, poltrone o divani.
I prezzi sono comprensivi di tutti i consumi, salvo diverse specificazioni, mentre non comprendono le pulizie finali, la biancheria da letto, bagno e tovagliato; supplemento per presenza animali, supplemento in caso di letto aggiuntivo; consumo aria condizionata, etc.
CONFERMA
Solo dopo aver ricevuto da voi il modulo di prenotazione e l'acconto, vi sarà inviata la conferma dell'avvenuta prenotazione con l'indirizzo dell'appartamento presso il quale è fissato il vostro soggiorno.
Qualora l'orario del vostro arrivo dovesse essere diverso da quello da voi comunicato, vi preghiamo di avvertire direttamente l'agenzia.
I nostri immobili vengono affittati da sabato a sabato. Le chiavi vengono consegnate non prima delle ore 17.00 e vanno restituite entro e non oltre le ore 10.30, in modo da consentire di riordinare la casa prima dell'arrivo dei nuovi turisti.
DISDETTE E MODIFICA DI PRENOTAZIONE
Se siete costretti a disdire la prenotazione o non vi presentate all’inizio del soggiorno o ritardate l’inizio dello stesso o lo interrompete:
- la nostra agenzia tratterrà il 100% dell'acconto.
Qualora richiediate la modifica di una prenotazione già effettuata, che comporti il cambiamento del periodo di vacanza e/o dell’alloggio:
- l’agenzia cercherà di venirvi incontro nei limiti di disponibilità degli alloggi, addebitando soltanto la somma di 30 € per lo svolgimento della pratica.
- qualora l’agenzia non riesca a trovare una soluzione alternativa e voi comunque non potete partire, l’agenzia tratterrà il 100% dell’acconto.
Qualora fossimo costretti a disdire la prenotazione, sarà nostra cura avvertirvi immediatamente e proporvi una sistemazione alternativa con caratteristiche simili. Nel caso non sia possibile trovare una sistemazione di vostro gradimento, la nostra agenzia restituirà l'intero acconto.
INFORMAZIONI
Nessuna responsabilità compete al proprietario della casa e/o a Costasalento per qualsiasi danno si verifichi alle persone o alle cose di loro proprietà durante lo svolgimento del soggiorno (lesioni, furto, o perdita di oggetti personali etc.)
- Non lasciare rubinetti aperti per evitare lo svuotamento improvviso dei serbatoi e quindi danneggiamento delle autoclavi; è vietato l’uso dell’acqua corrente per lavare l’auto.
- Non sporcare muri e materassi; evitare di introdurre nel water pannolini, assorbenti o altro tipo di carta diversa da quella igienica onde evitare intasamenti e danni;
- L’appartamento è fornito di contatore ENEL a bassa potenza: non accendere contemporaneamente scaldabagno, asciugacapelli o altre resistenze elettriche.
- La cucina è alimentata da bombola a gas che si prega di richiudere accuratamente dopo l’uso.
- Nel caso si rendesse necessaria la sostituzione-bombola, si prega di telefonare al 347/7154295.
- Segnalare eventuali carenze o danni riscontrati all’inizio del soggiorno.
- Obbligo di riconsegnare l'appartamento o la villa con un minimo di pulizia, incluso l'angolo cottura.
- A fine soggiorno si raccomanda di non lasciare piatti da lavare e/o fornelli sporchi. I letti devono essere disfatti.
- L’appartamento non può essere occupato da un numero superiore a quello dichiarato al momento della prenotazione.
- Non arrecare disturbo ai vicini con rumori o schiamazzi dalle ore 15 alle ore 17 e dalle ore 24 in poi.
VALUTAZIONE E RECLAMI
Qualsiasi lamentela viene da noi presa in seria considerazione e per questa ragione vi preghiamo di riempire i questionari che sono a vostra disposizione presso gli appartamenti e di consegnarceli prima della vostra partenza. Sono questionari di valutazione del servizio offerto dalla nostra agenzia e serviranno per un’indagine conoscitiva sulle aspettative, motivazioni, esigenze e grado di soddisfazione della nostra clientela.
Non verranno prese in considerazione richieste di rimborsi che dovessero pervenire dopo aver completato il periodo di soggiorno presso i nostri appartamenti.
PRIVACY
I dati da Voi forniti saranno trattati nel rispetto degli obblighi di riservatezza regolati dalla normativa della legge n. 675 del 31/12/1996 e saranno trattati attraverso strumenti idonei a garantire la sicurezza dei dati stessi.